Gesundheitshaus Steißlingen

Lange Straße 27 | 78256 Steißlingen

Modernes Wohn- und Geschäftshaus mit gesundheitsbezogenen Gewerbeeinheiten und 5 hochwertigen Wohnungen im Dachgeschoss.

Wohn- und Geschäftshaus

mit 6 Gewerbeeinheiten

5 Wohnungen

im Dachgeschoss

Gewerbliche Fläche

ca. 150 m² bis 220 m²

BLUEPRINT

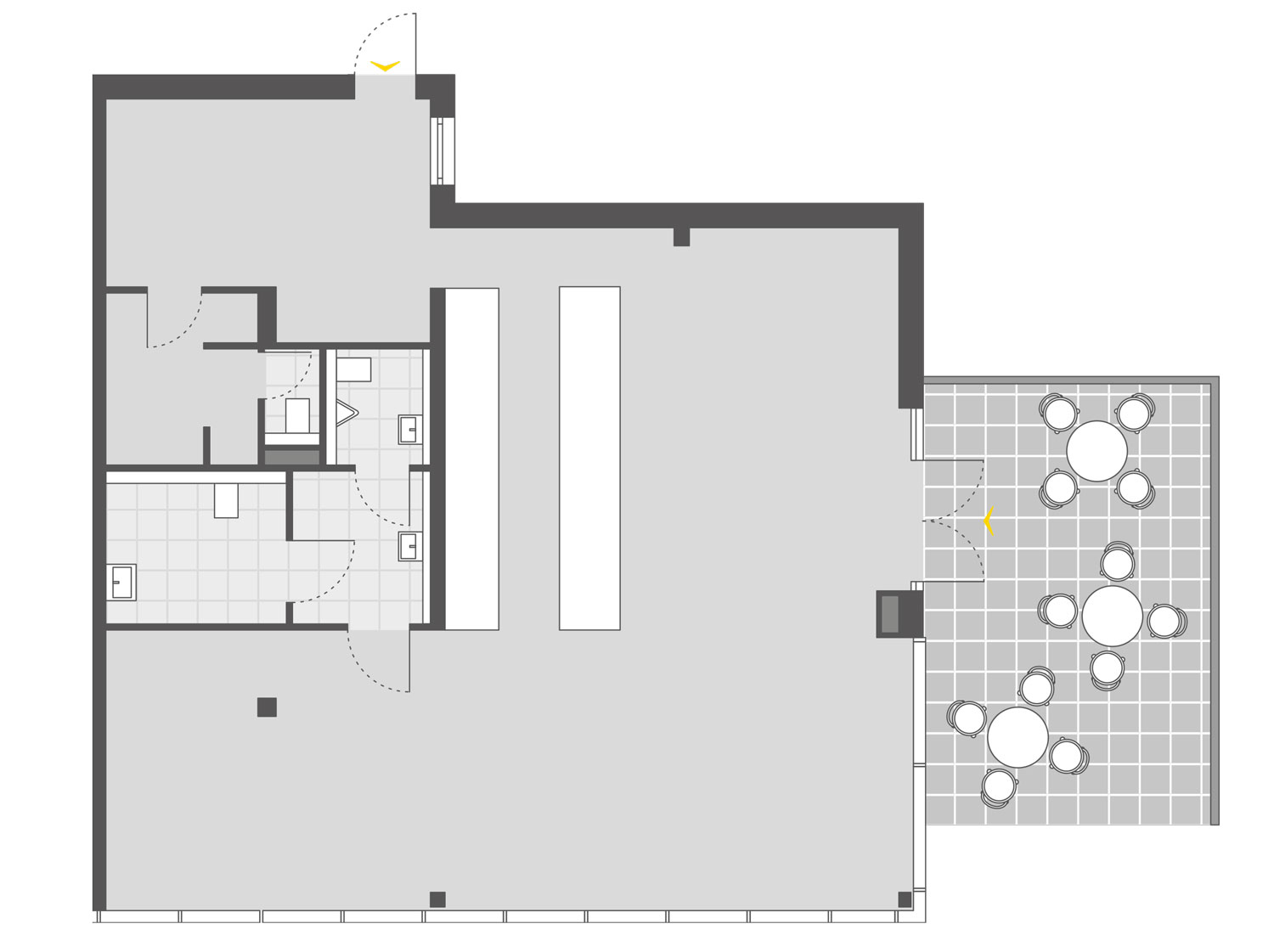
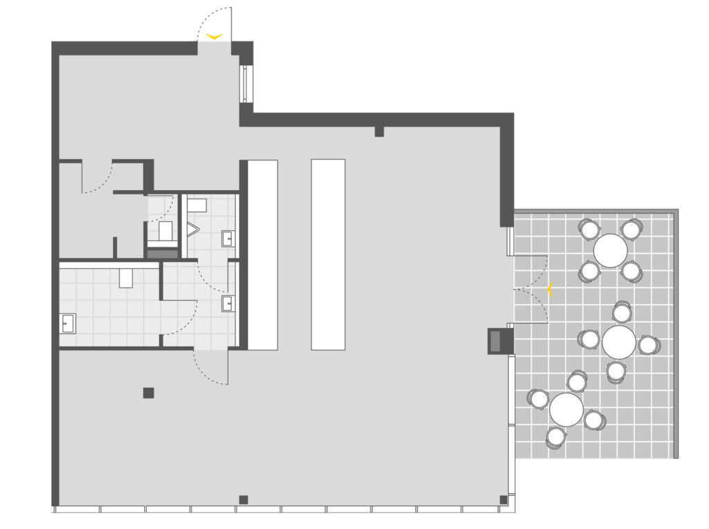
Flexible Raumaufteilung

zur gewerblichen Nutzung

perfekte Infrastruktur

in fußläufiger Entfernung

Tiefgaragenstellplätze

für Patienten, Kunden und Mieter

Klimaanlage

optional möglich

ELEVATOR

Aufzug

in alle Geschosse

Unter einem Dach

Moderner Gesundheits- & Wohnstandort im Herzen von Steißlingen

Das Gesundheitshaus Steißlingen vereint Wohnen, medizinische Versorgung und moderne Gesundheitsdienstleistungen unter einem Dach.
In zentraler Lage, direkt im Ortskern, bietet das Gebäude eine zukunftsorientierte Mischung aus Praxen, Fitnessstudio, Café und attraktiven Wohnungen.
Ein idealer Standort für Gesundheitsanbieter, Investoren und Mieter, die Wert auf Service, Sichtbarkeit und eine starke Lage legen.

Das Haus ist speziell auf gesundheitsnahe Dienstleistungen ausgerichtet
ideal für Praxen, Therapie, Fitness, Wellness und ergänzende Angebote.

Gewerbe im Gesundheitshaus Steißlingen

Die Lage

Lagevorteile im Zentrum von Steißlingen

Das Gesundheitshaus verbindet moderne Architektur mit funktionaler, gesundheitsorientierter Nutzung.

Das Nutzungskonzept

Gesundheit, Service & Nahversorgung

Das Haus ist speziell auf gesundheitsnahe Dienstleistungen ausgerichtet – ideal für Praxen, Therapie, Fitness, Wellness und ergänzende Angebote. Das macht das Objekt besonders flexibel und zukunftssicher.

steisslingen_seitenansicht

Gewerbefläche 1 (EG)

(laufender Mietvertrag, an Investor veräußerbar)

157,04 m²

Gewerbefläche 2 (EG)

(laufender Mietvertrag, an Investor veräußerbar)

135,09 m²

Gewerbefläche 3 (EG)

(laufender Mietvertrag, an Investor veräußerbar)

176,49 m²

Gewerbefläche 5 (OG)

(zum Kauf/Miete, gesundheitsbezogene Nutzung)

134,05 m²

Das Gebäude ist speziell für gesundheitsnahe Gewerbe konzipiert: Praxen, Therapien, Coaching, Fitness, Wellness sowie ergänzende Dienstleistungen. Zusätzlich gibt es gastronomische und wohnwirtschaftliche Einheiten.

Ja. Die verfügbare Einheit G5 kann individuell an die Anforderungen des Mieters angepasst werden – ideal für Praxen oder spezialisierte Anwendungen.

Die zentrale Lage im Ortskern, die hohe Fußgängerfrequenz, die Sichtbarkeit und die unmittelbare Nähe zu anderen Dienstleistern schaffen optimale Bedingungen für einen nachhaltigen, stabilen Patienten- und Kundenstrom.

Ja. Drei gewerbliche Einheiten sind langfristig vermietet und können einzeln oder im Paket an Investoren verkauft werden – ein attraktives Angebot mit stabilen Mieteinnahmen.

Das Objekt ist fertiggestellt. Die Bezugsfertigkeit erfolgt nach Vereinbarung.

FAQ

Nach oben scrollen